ΠΛΗΡΟΦΟΡΙΕΣ
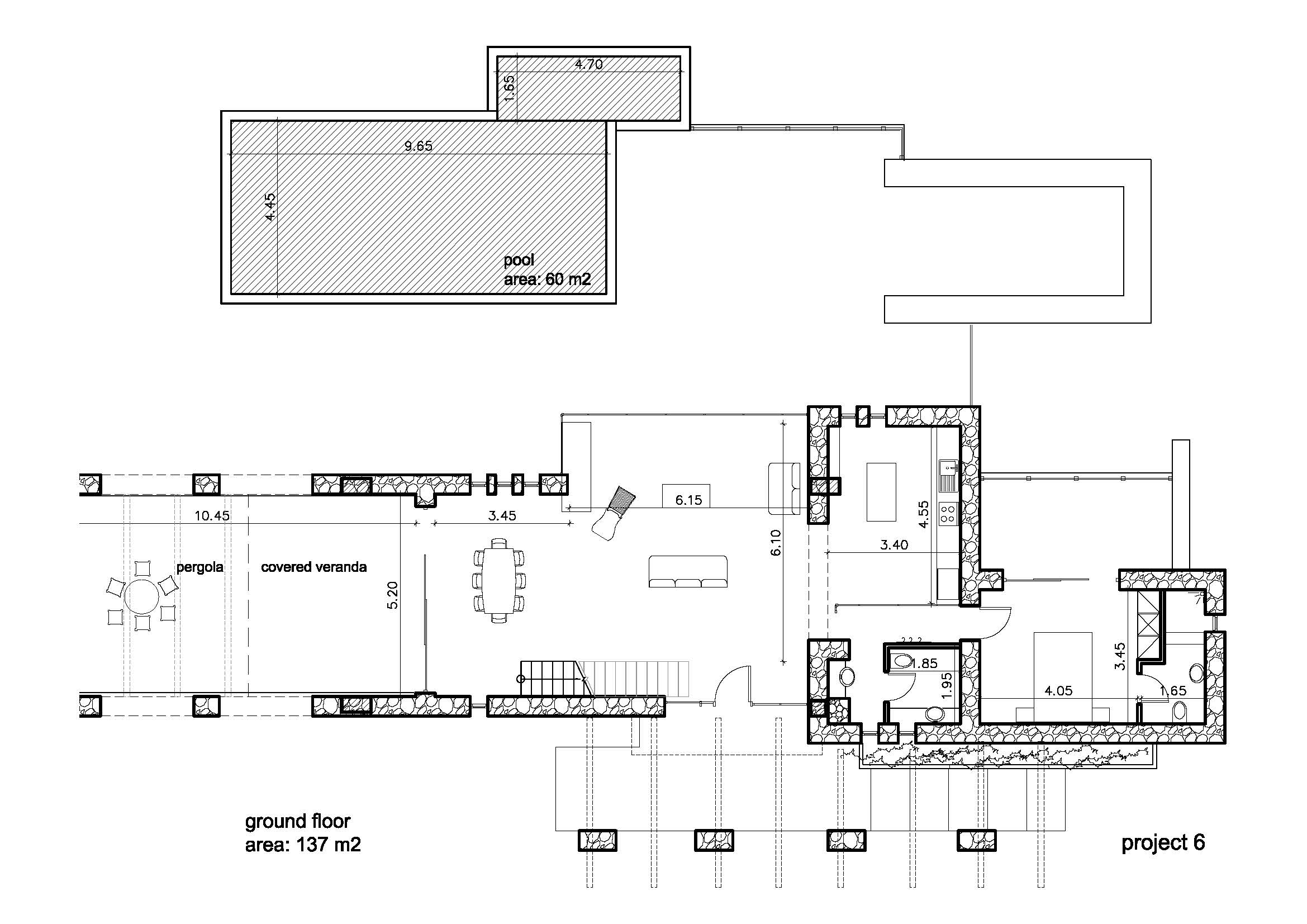
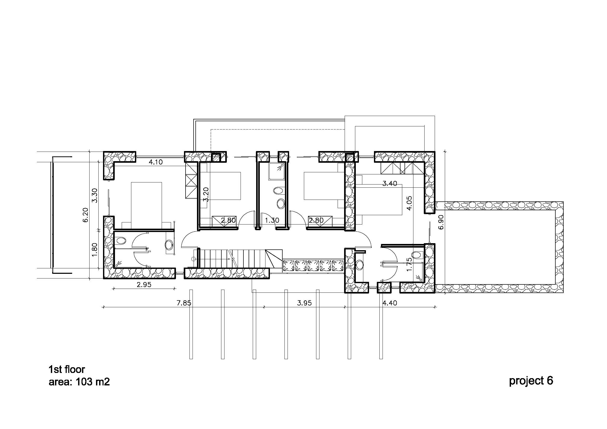
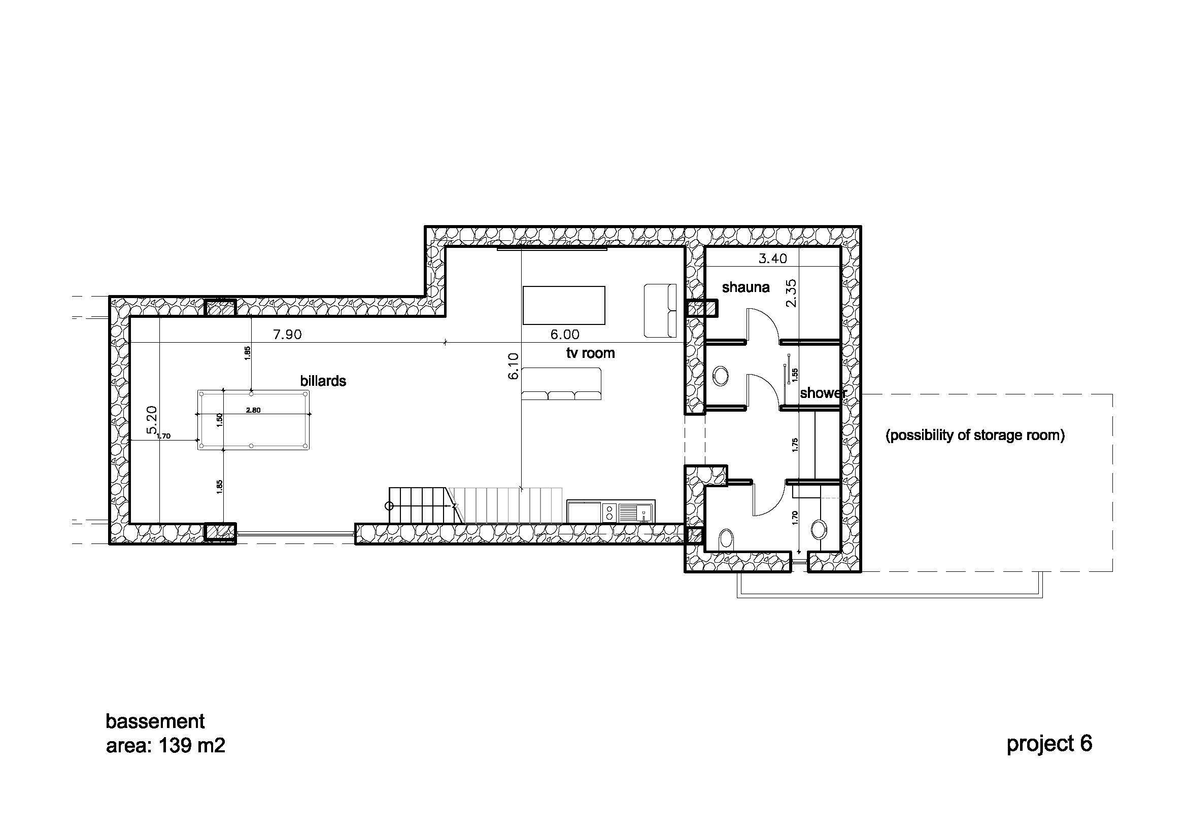
FLOORS : 2
MAIN AREAS: 175,00 m² / ΝΟ BASEMENT
COVERED VERANDAS AREAS: 54,10 m²
TOTAL AREA: 229,10 m²
POOL AREA: 51,00 m²
PERGOLA AREA: 8,00 m²
BEDROOMS: 3 / BATHROOMS: 2
 

Σχετικα με το Artect

Είμαστε τεχνικό γραφείο απαρτιζόμενο αποκλειστικά από πτυχιούχους μηχανικούς που αναλαμβάνουμε την μελέτη και υλοποίηση κατασκευών υψηλών απαιτήσεων με ανταγωνιστικότερες και ποιοτικότερες συμφωνίες προκειμένου για να εξυπηρετήσουμε πελάτες ειδικών απαιτήσεων σε λογικές τιμές.

Επικοινωνία

Τηλ: 6973 77 8 999
Fax: 2821 0 69774
Ηλεκτρονική Διεύθυνση
[email protected]
[email protected]
Διεύθυνση Γραφείου
25ης Μαρτίου 1 - ΤΘ 725
Κουνουπιδιανά - ΤΚ 73142
Χανιά - Κρήτη

Χάρτης

Τελευταία Νέα